Overview
- Updated On:
- June 11, 2025
- Category
- Beach Front Property, Cyprus Villas, Houses
- 466.00 m2
- 4 Bedrooms
- Covered Garages
- 292.00 m2
Description
15194
This luxury property is located on the prestigious Limassol Marina beach, enjoys panoramic views from every corner of the house and is just a few steps from the five-star amenities.
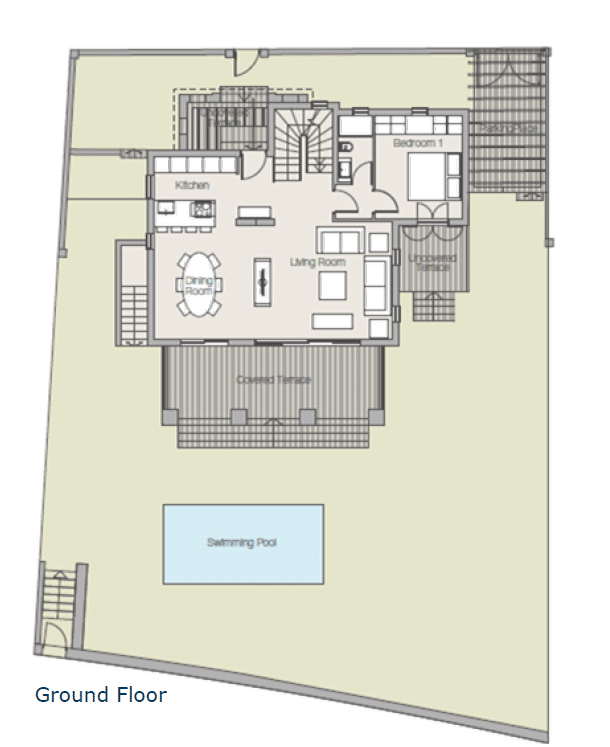
The villa features four detached bedrooms, each with an en-suite bathroom, one situated on the ground floor and three on the first floor. Additional amenities include electric curtains in the living room, two extra bedrooms on the lower ground floor, and a lounge/cinema room with an additional small kitchen on the lower ground floor.
COMPLEX FEATURES
- Spa and fitness club
- Concierge
EXTRA FEATURES
- Swimming pool
- Home cinema
Internal area: 180 m2
Basement: 90 m2
Covered veranda: 22 m2
Uncovered veranda: 36 m2
Energy Class: A
A+
Energy class A
AB
C
D
E
F
G
H
Property Id: 82435
Price: €15,000 per month
Property Size: 292.00 m2
Property Lot Size: 466.00 m2
Bedrooms: 4
Garages: Covered
Property ID: 15194
Other Features
Air conditioning
Basement
Complex with Facilities
Concierge
Double glazed thermal aluminium windows
Garden
Gym
High-quality kitchen cabinets
High-quality Sanitary Ware
High-quality wardrobes
Parking space
Swimming pool
Similar Listings
13
Rented
Limassol Property Luxury Three Bedroom Apart...
€8,000 per month
18796 This luxury 3-bedroom apartment is located in a gated tower in Neapolis, Limassol, c ...
33 Covered 162.00 m2
14
Rented
Limassol Property Modern Four Bedroom House
€6,800 per month
17970 This modern, stylish 4-bedroom house is located in the Pareklisia area of Limassol. ...
43 Covered 330.00 m2
12
Rented
Limassol Property Three Bedroom House with P...
€2,200 per month
17937 This three-bedroom house is located in the Agios Athanasios area of Limassol, close ...
32 Covered
20
Rented
Limassol Property Stylish Four Bedroom Villa
€5,900 per month
17899 This fantastic 4-bedroom villa in Pareklisia, Limassol, offering breathtaking unobst ...
44 Covered 400.00 m2







