Overview
Description
17698
This commercial building is located in the prime, prestigious area of Germasogeia, within Limassol’s tourist district. It offers close proximity to essential infrastructure such as reputable business centres, high-end hotels, banks, and fine-dining restaurants.
This outstanding building consists of five floors of commercial office space, each meticulously designed to meet the standards and expectations of high-calibre businesses. The floor-to-ceiling windows provide stunning city and mountain views.
EXTRA FEATURES
- Provision for VRV
- Fire alarm system
- CCTV cameras
- Covered parking spaces
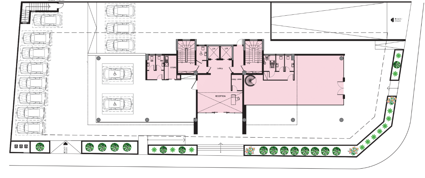
Basement: 830 m2
Ground floor: 340 m2
1st floor: 265 m2
2nd-5th floor: 2.080 m2
6th floor: 520 m2
Roof: 483 m2
Plot size: 1532 m2





