Overview
- Updated On:
- December 30, 2025
- Category
- Cyprus Villas, Houses
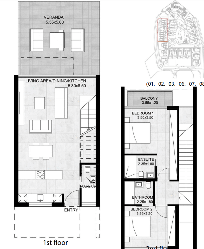
- 104.00 m2
- 2 Bedrooms
- 2 Bathrooms
- Covered Garages
- 123.00 m2
Description
15195
The modern residential project spanning an impressive 21,200 square meters in the heart of Agios Athanasios. Consist of a harmonious blend of 11 luxurious villas, 9 townhouses, and 81 stylish apartments, this development is a testament to sophistication and urban tranquility.
The contemporary architecture as each residence seamlessly integrates with its surroundings. The thoughtful design incorporates large floor-to-ceiling windows, creating a fluid connection between indoor and outdoor spaces.
Surrounding the residences are lush green spaces and meticulously landscaped gardens. Indulge in captivating panoramic views that span both cityscapes and the serene sea.
EXTRA FEATURES
- GYM
- Playground
- 2 large swimming pools
- Storage
Internal are: 105 m2
Covered veranda: 18 m2
Plot area: 104 -164 m2
Price: € 1116.880 – 1.119.880 + VAT




