Overview
- Updated On:
- October 7, 2025
- Covered Garages
- 1,756.00 m2
Description
16448
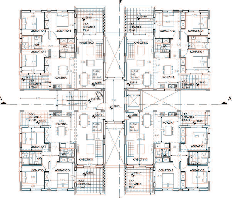
This contemporary residential building is located in Agios Athanasios, Limassol. It features a modern, three-story low-rise building with a total of 12 apartments—four on each floor. The building comprises exclusively three-bedroom apartments, with four units per floor. Each apartment includes a covered parking space and a private storage room.
The development offering scenic views of the sea and surrounding landscape. Its prime location ensures easy access to essential amenities and is just a 3-minute drive from the Linopetra roundabout. Nearby facilities include supermarkets, pharmacies, schools, and banks.
EXTRA FEATURES
- Austrian photovoltaic system – 3KW
- German thermal insulation – 10cm (ClimaPlus – Thrakon)
- German solar panels & Italian pressure pipe
- Italian manifolds & multilayer pipe-in-pipe system with aluminium layer (Giacomini)
- Italian waterproofing system (Copernit)
- Belgium waterproof parquet with lifetime warranty (Quick-Step)
- Insulated bricks and windows
- High budget for sanitary ware, ceramics & tiles – €55/m²
- Boundary walls coated with fiber-reinforced adhesive glue (Thrakon 410)
- Internal walls finished with fiber-reinforced adhesive glue & three coats of stucco
- Galvanized gates
- Italian whole-house water filtration system
- Custom façade options: HPL / stone / wood
Apt 101–103
- Internal area: 95 m²
- Verandas: 25 m²
- Storage: 3 m²
- Covered parking: 15 m²
- Studio: 22–24 m²
Apt 104, 201–204
- Internal area: 95 m²
- Verandas: 25 m²
- Storage: 3 m²
- Covered parking: 15 m²
Apt 301–304
- Internal area: 95 m²
- Verandas: 25 m²
- Storage size: 3 m²
- Studio: 37 m²
- Roof garden: 40 m²







