Overview
Description
17934
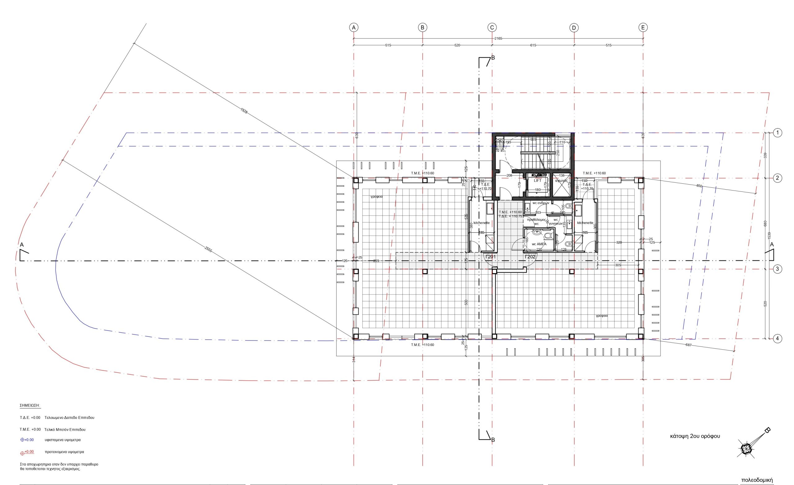
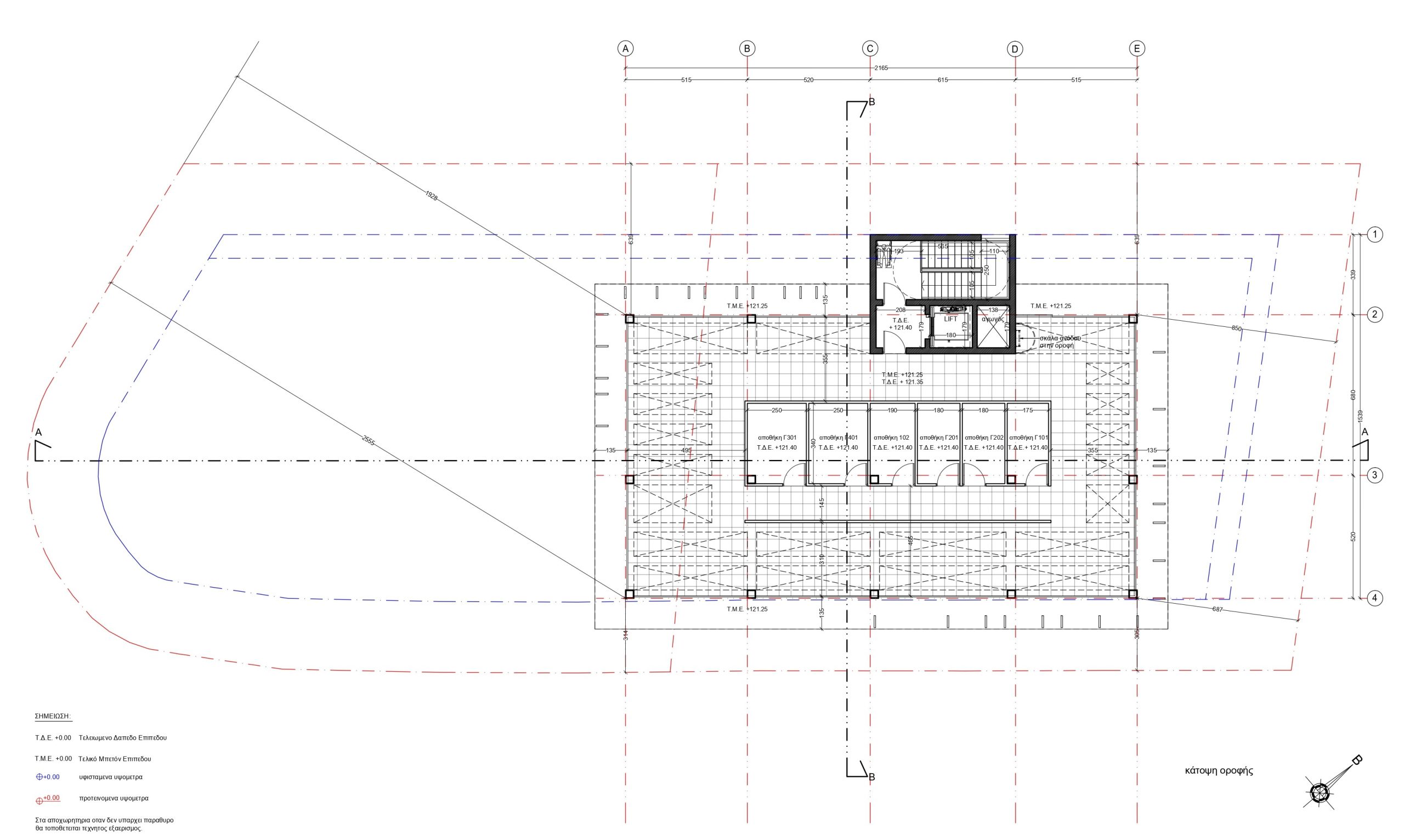
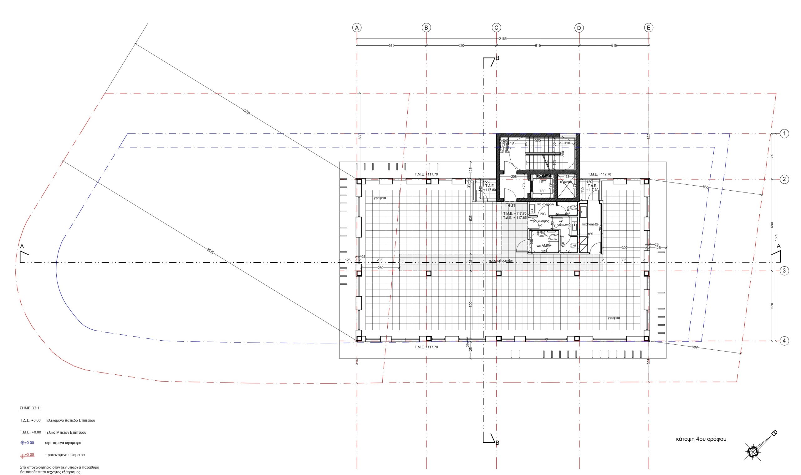
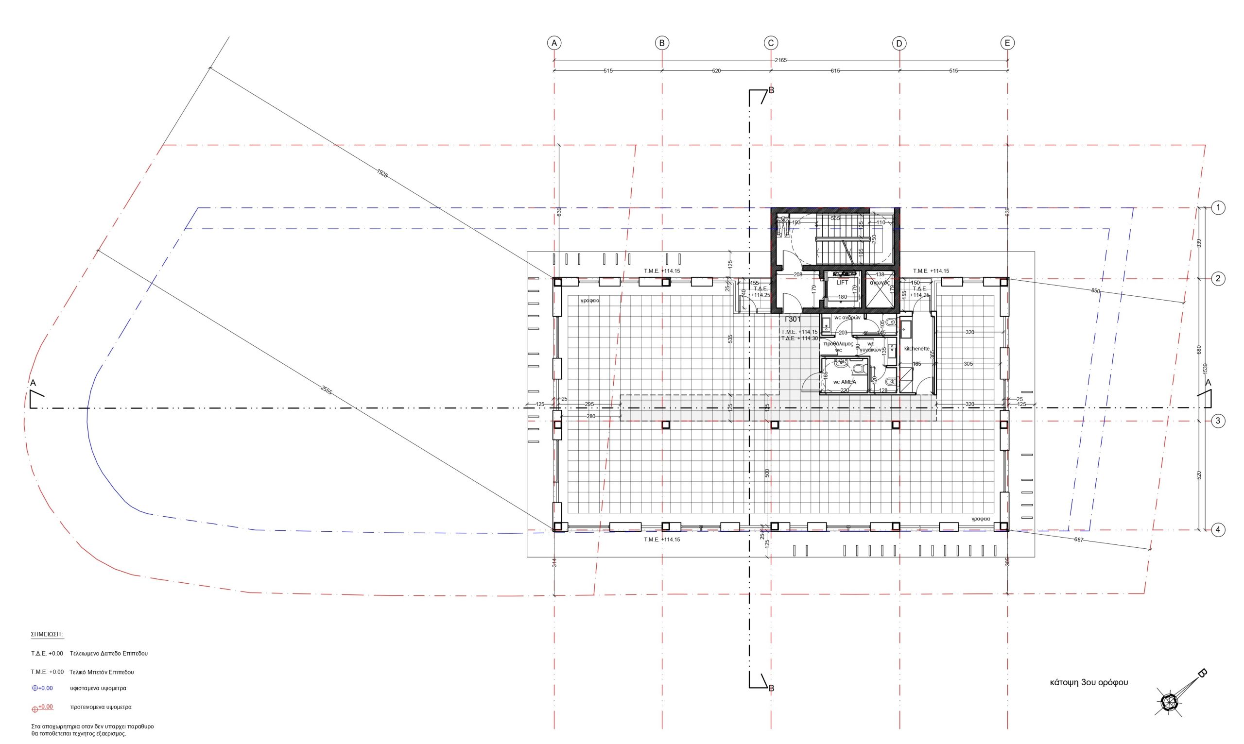
This modern office building project is located in the Agia Fyla area of Limassol, on Agias Fylaxeos Avenue, with excellent access to the business district, private schools, government offices, and the highway network.
The development will be built on two adjoining plots totaling 1,147 m2 and will offer approximately 1,000 m2 of net open-plan office space (1,332 m2 gross) across four floors. From the third floor upwards, the building enjoys city and sea views, while the ground floor includes a reception area and the top floor features a roof garden. The project is sold as-is, including both plots and all approved permits, ready for immediate development.
EXTRA FEATURES
- 25 covered parking spaces
- 13 uncovered parking spaces


