Overview
- Updated On:
- March 26, 2026
- Category
- Apartments, Beach Front Property
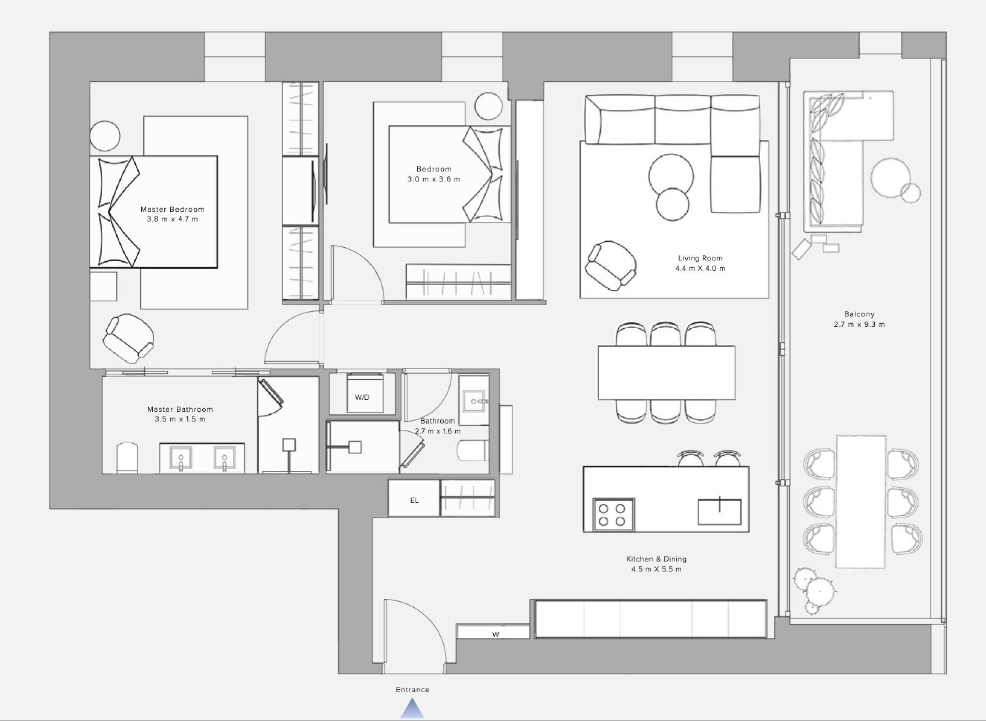
- 2 Bedrooms
- 2 Bathrooms
- Covered Garages
- 132.00 m2
Description
17837
This exceptional two-bedroom apartment offers an exclusive Mediterranean seafront lifestyle within a landmark development featuring landscaped gardens, outdoor pools, and a luxury spa. Ideally located on Limassol’s Seaside Promenade, it is moments from historic landmarks, cafés, and fine dining. Set on the 21st floor of an iconic 33-storey tower, the residence boasts panoramic sea views, with an open-plan layout and expansive terraces evoking the feel of a private super-yacht.
An exceptional range of premium services is available, including 24/7 concierge, valet parking, porter and doorman services, luxury transport arrangements, housekeeping, private chef and personal training, event planning, and tailored lifestyle services.
EXTRA FEATURES
- Marble flooring
- Wooden parquet flooring in bedrooms
- Home automation system by Lutron
- Dimmable LED lighting fixtures
- Rain Showers
- Shower toilet in master bedroom
- Covered parking space
- Storage
Internal area: 107 m2
Covered veranda: 25 m2











