Overview
Description
15636
This modern business center in Mesa Geitonia, Limassol, is situated in the vibrant heart of the city, offering a prime location that enhances its investment potential. The development consists of a sleek, four-story building featuring contemporary office spaces with flexible layouts designed to meet various business needs.
Each floor is equipped with five parking spaces in the underground parking facility, adding convenience and accessibility for the visitors. This is a mixed-use development project comprising both residential and commercial buildings.
EXTRA FEATURES
- Underground parking spaces
- Stylishly designed reception area
- Storage rooms of the lower floor for each office
- Spacious showroom with a mezzanine on the lower level, opening onto one of Limassol’s main streets
Ground floor
Showroom: 295 m2
Mezzanine: 135 m2
Common area: 39.4 m2
Price: € 2.752.000 + VAT
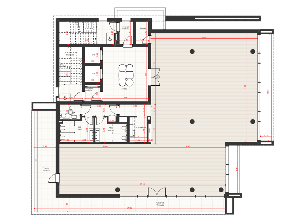
1st floor:
Internal area: 301 m2
Covered veranda: 66 m2
Uncovered veranda: 25 m2
Common area: 40 m2
Price: € 2.423.520 + VAT
2nd floor:
Internal area: 301 m2
Covered veranda: 66 m2
Common area: 40 m2
Price: € 2.496.960 + VAT
3rd floor:
Internal area: 301 m2
Covered veranda: 66 m2
Common area: 40 m2
Price: € 2.570.400 + VAT
4th floor:
Internal area: 301 m2
Covered veranda: 66 m2
Roof garden:39 m2
Uncovered roof garden: 139 m2
Common area: 40 m2
Price: € 3.121.200 + VAT







