Overview
Description
17951
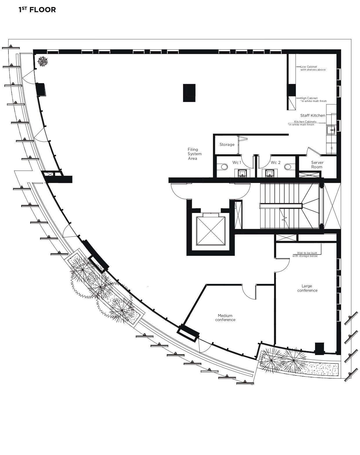
This modern office space is located in Mesa Geitonia, Limassol, close to all amenities and offering easy access to the highway, making it highly convenient for businesses. The office is situated on the first floor of a modern business center.
It includes a large conference room, a medium-sized conference room, an open-plan office area, a kitchen, storage space, two WCs, and a server room. The building also features a reception area and a café in the lobby.
EXTRA FEATURES
- Unfurnished
- 2 covered parking space in the basement
- 2 mechanical covered spaces
- Optional parking spaces: uncovered at additional price.
Monthly common expenses: € 1,200 + VAT
Payment terms: 2 months’ rent in advance + 2 months’ deposit
Minimum lease period: 3 years
Energy Class: A
A+
Energy class A
AB
C
D
E
F
G
H
Listing Id: 17951
Price: € 10,500 per month
Property Size: 255.00 m2
Year Built: 2017
Garages: Covered
Floor No: 1
Property ID: 17951
Number of floors in the building: 5
Other Features
Air conditioning
Basement
Double glazed thermal aluminium windows
High-quality Sanitary Ware
Lift
Parking space
VRV Systems
Similar Listings
3
To rent
Limassol Property Office Space in Prime Loca...
€ 16,000 per month
17948 This office space is located in the Agios Athanasios area of Limassol, close to all ...
Covered 434.00 m2
17
To rent
Limassol Property Office Space in the City C...
€ 3,700 per month
17932 This office space is located in Agia Zoni, Limassol, close to all amenities, includi ...
Covered 250.00 m2
6
To rent
Limassol Property Office Space in Prime Loca...
€ 1,600 per month
17917 This office space is located in the center of Limassol, in the Katholiki area, close ...
Uncovered 110.00 m2
7
To rent
Limassol Property Modern Office Space in Pri...
€ 3,500 per month
17751 This office space is located in a modern mixed-use five-floor building in Neapolis, ...
2 Covered 118.00 m2


